Проектируем инженерные сети и сооружения

Услуги
ПРОЕКТИРОВАНИЕ СЕТЕЙ
Комплексное проектирование
Проект под ключ: от концепции до согласований.
Проект водоснабжения
Проектирование наружных сетей водоснабжения и водоотведения с полным пакетом согласований.
Проект водоотведения
Проектирование наружных сетей водоснабжения и водоотведения с полным пакетом согласований.
Почему выбирают нас?
ДОВЕРЬТЕ ПРОЕКТ ПРОФЕССИОНАЛАМ С ОПЫТОМ И ПОД КЛЮЧ
Выбирают нас за профессионализм в проектировании наружных сетей и сооружений. Мы берем на себя все этапы от разработки до согласования с ресурсоснабжающими организациями, что гарантирует надежность проекта и его успешное внедрение без лишних задержек.
Учитываем мнение Заказчика о применяемом оборудовании и материалах.​
30+
выполнено заказов

Выполненные работы

Проект сетей жилого дома на ул. Глинки
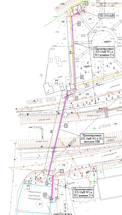
Проект кабельной линии под р. Кача
Проектирование инженерных сетей для жилого комплекса ЭКО
Многоквартирный жилой дом на ул. Вильского
Эскизный проект многоквартирного жилого дома. Магадан
Система электроснабжения ЖК Аллея Парк
Сети инженерного обеспечения жилого дома ул. 26 Бакинских комиссаров
Вертикальная планировка ЖК в Березовке
Эскизный проект дороги ЖК Аллея Парк
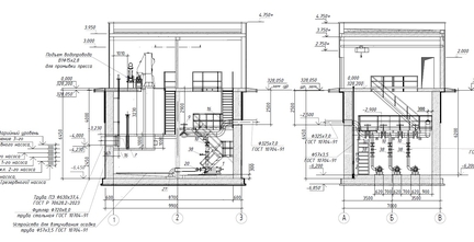
Производственное здание индустриального парка Красный Яр II очередь
Контакты
Есть вопросы? Мы поможем с выбором услуги, уточним детали и подберём удобное время.
Приезжайте
г. Красноярск, ул. Подзолкова, 19, пом. 235
Пишите
azalin@bk.ru